Каркасно-панельный быстровозводимый дом AET-007

Характеристика дома:
Общая площадь
208,2 m²
Жилая площадь
68,9 m²
Количество этажей
Двухэтажный
Количество санузлов
3
Количество человек
4-6
Особенности
Панорамное остекление, Терраса
Стоимость от
62 460 €
Контакты для связи:
Способы оплаты
С помощью интернет банкинга
Рассрочки / кредитование
Досрочное погашение
Предчистовая отделка включена
Гарантия на проект
Фиксированная цена
Стоимость, указанная в договоре, не меняется в ходе строительства
Гибкая система оплаты
Вы вносите 5% от стоимости при подписании договора. Остаток оплачиваете частями.
Изменение проекта
При строительстве с нами - изменеие типового проекта или адаптации проекта другой компании - бесплатно

О проекте Каркасно-панельный быстровозводимый дом AET-007

Этот односемейный дом, рассчитанный на 4-6 человек, может быть как одно-, так и двухэтажным. В базовом варианте на первом его этаже находится гостиная с эркерным окном, столовая, кухня и небольшая кладовая. Кроме того, проектом предусмотрены три спальни (одна большая и две малых), гардеробная, три санузла, котельная и большой гараж на два автомобиля.

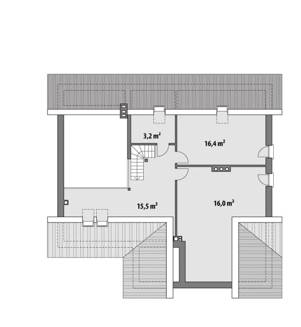
Что же касается второго этажа, в зависимости от желания заказчика он может стать чердаком или жилой мансардой с тремя большими комнатами и (опционально) еще одним санузлом.

Чтобы обеспечить второй этаж дома максимум дневного света, в крыше могут быть установлены мансардные окна. Они достаточно герметичны и надежны, чтобы исключить промерзание и протечки.

Очевидным достоинством проекта является огромная терраса, как и в этом солидном двухэтажном особняке AET-011, на которой достаточно места, чтобы установить столовую группу на шесть посадочных мест, а также джакузи или японскую бочку-фурако. Более того, проектом предлагается уличная печь, которая имеет общий дымоход с камином, установленным в гостиной. В качестве материала мощения для этой зоны специалисты AET-HOME предлагают террасную доску, настил из древесно-полимерного композита или доску из лиственницы.

Попасть на террасу можно через большие двери с панорамным остеклением. Их рамы могут быть выполнены как из обычного ПВХ-профиля, так и из так называемого «теплого» алюминия с терморазрывом. Речь идет о вставке из полиамида, которая препятствует промерзанию конструкции. Поэтому дом можно использовать для круглогодичного проживания.

Закажите бесплатный расчет

Характеристика
Общая площадь
208,2 m²
Жилая площадь
68,9 m²
Количество этажей
Двухэтажный
Количество санузлов
3
Количество человек
4-6
Особенности
Панорамное остекление, Терраса
Отделка фасада
Камень, Планкен, Штукатурка
Форма крыши
Многоскатная
Популярные проекты
Быстровозводимый одноэтажный дом AET-026
Общая площадь
184,8 m²
Жилая площадь
102,8 m²
Количество этажей
Одноэтажный
Количество санузлов
1
Стоимость от
55 440 €
Быстровозводимый дом AET-020
Общая площадь
184,0 m²
Жилая площадь
81,9 m²
Количество этажей
Одноэтажный
Количество санузлов
2
Стоимость от
55 200 €
Быстровозводимый каркасно-панельный дом для проживания AET-016
Общая площадь
184,1 m²
Жилая площадь
86,8 m²
Количество этажей
Двухэтажный
Количество санузлов
3
Стоимость от
55 230 €
Все проекты
Обратная связь
Оставьте заявку и получите проект дома в подарок