Быстровозводимый дом AET-024

Характеристика дома:
Общая площадь
163,3 m²
Жилая площадь
89,7 m²
Количество этажей
Двухэтажный
Количество санузлов
1
Количество человек
3-5
Особенности
Панорамное остекление, Терраса
Стоимость от
48 990 €
Контакты для связи:
Способы оплаты
С помощью интернет банкинга
Рассрочки / кредитование
Досрочное погашение
Предчистовая отделка включена
Гарантия на проект
Фиксированная цена
Стоимость, указанная в договоре, не меняется в ходе строительства
Гибкая система оплаты
Вы вносите 5% от стоимости при подписании договора. Остаток оплачиваете частями.
Изменение проекта
При строительстве с нами - изменеие типового проекта или адаптации проекта другой компании - бесплатно

О проекте Быстровозводимый дом AET-024

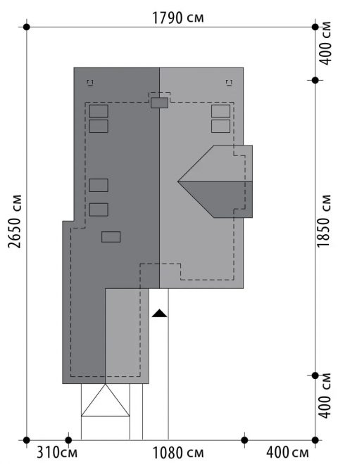
Этот двухэтажный загородный коттедж, рассчитанный на семью из 3-5 человек, имеет вытянутую форму, что делает его прекрасным решением для узкого участка. Строение отличается интересным с точки зрения архитектуры обликом — он как будто собран из трех уютных домиков, объединенных одной многоскатной крышей. На промо-изображениях она покрыта металлической фальцевой кровлей, но возможны и другие варианты, например, гибкая битумная черепица, которая идеально подходит для сложных крышных конструкций.

Площадь дома относительно невелика — всего 163 м2. Но при этом он вмешает в себя все, что нужно для комфортного проживания семьи. Так, на первом этаже находится кухня, гостиная, совмещенная с столовой, просторная (более 11,6 м2) кухня, и жилая комната, которая может быть так спальней, так и кабинетом, мастерской, домашним кинотеатром и проч. Рядом находится санузел с душевой кабиной. Если вас интересуют более большие дома, обратите внимание на еще один из наших домов проекта AET-003.

Из гостиной через большие стеклянные двери можно выйти на террасу, которая в базовом варианте имеет лишь ажурный навес, дающий полупрозрачную тень. Но по желанию заказчика его можно заменить на полноценную кровлю.

Кроме того, на первом этаже проектом предусмотрены гараж на один автомобиль и техническое помещение — котельная.

Второй этаж включает в себя три спальни и большой санузел с отдельным помещением под постирочную. Все окна имеют так называемые французские балконы — установленные снаружи ограждения, которые позволяют безопасно наслаждаться свежим воздухом при полностью открытых створках.

Закажите бесплатный расчет

Характеристика
Общая площадь
163,3 m²
Жилая площадь
89,7 m²
Количество этажей
Двухэтажный
Количество санузлов
1
Количество человек
3-5
Особенности
Панорамное остекление, Терраса
Отделка фасада
Камень, Планкен, Штукатурка
Форма крыши
Многоскатная
Популярные проекты
Каркасно-панельный быстровозводимый дом AET-007
Общая площадь
208,2 m²
Жилая площадь
68,9 m²
Количество этажей
Двухэтажный
Количество санузлов
3
Стоимость от
62 460 €
Быстровозводимый одноэтажный дом AET-026
Общая площадь
184,8 m²
Жилая площадь
102,8 m²
Количество этажей
Одноэтажный
Количество санузлов
1
Стоимость от
55 440 €
Быстровозводимый дом AET-020
Общая площадь
184,0 m²
Жилая площадь
81,9 m²
Количество этажей
Одноэтажный
Количество санузлов
2
Стоимость от
55 200 €
Все проекты
Обратная связь
Оставьте заявку и получите проект дома в подарок